Skoči na vsebino

Športna dvorana in športni park Grofovska

Status:
Vrednost investicije:
3.500.000,00 EUR
Lastna sredstva:
1.500.000,00 EUR
EU sredstva:
500.000,00 EUR
Sredstva državnega proračuna:
1.500.000,00 EUR

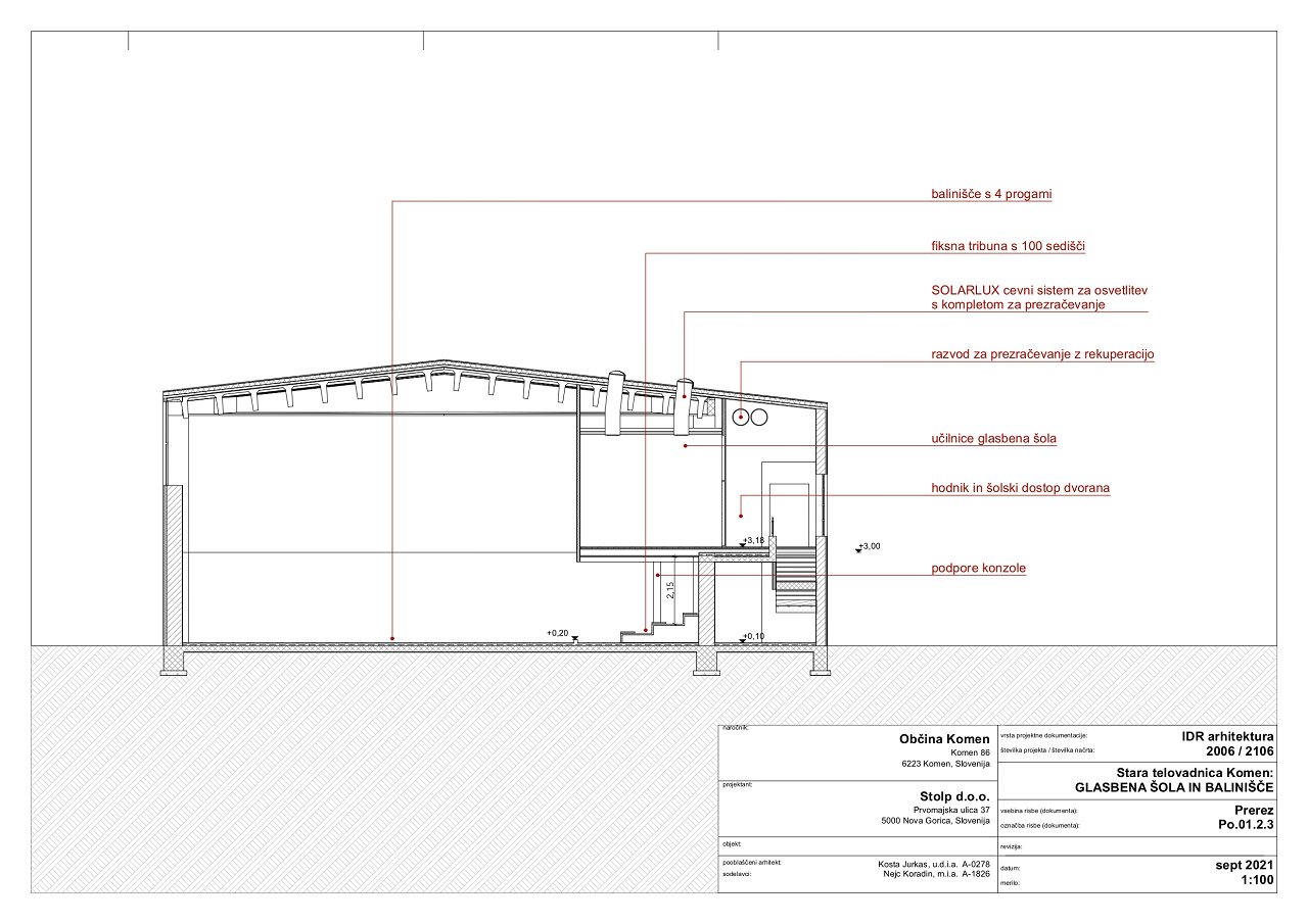
V letu 2021 je bila izdelana in potrjena celovita idejna zasnova ureditve športnega parka na Grofovski vključno z idejno zasnovo nove športne dvorane ter preureditve sedanje telovadnice v prostore za glasbeno šolo Komen (v nadstropju) in balinarsko dvorano (v pritličju).

V izdelavi je projektna dokumentacija za pridobitev projektnih pogojev za postavitev nove športne dvorane. Na tej podlagi se bo izdelalo grasdbeno dokumentacijo za pridobitev gradbenega dovoljenja za izgradnjo nove športne dvorane. Investicija je predvidena v letih 2024 in 2025.

Novice Občine Komen

Bodi obveščen o spletnih objavah Občine Komen!
Naroči se na novice.

PRIJAVA